Brechend voll war gestern Erchana-Saal bei der vorzeitigen Bürgerinformation zur Bebauungung des Udldinger Hangs. Eine vorzeitige Bürgerinformation gibt es zwar nicht, dennoch kam der OB Hartmann der „konsensorienterten Bürgerinitiative“ Udldinger Hang entgegen und erläutere den Planungsstand, der noch nicht einmal dem einer Vorplanung entspricht.
Vergleich TSV: Bei der Bebauung des Stammgeländes des TSVs – gibt es eine entsprechende Veranstaltung bisher nicht
Die Verwaltung erläuterte den dringenden Bedarf an Normalwohnungen, der über Förderungen finanziert werden soll. Der OB erläutere, dass auf allen städtischen Grundstücken geförderter Wohnbau geplant sei. Zu diesem Punkt gab es seitens der Anwesenden keinerlei Kritik – im Gegenteil einige Teilnehmer bestätigten sogar den dringenden Bedarf an Wohnungen für Normalverdiener, die sich sonst Dachau nicht mehr leisten könnten.
Vergleich TSV: hier entsteht nur ein Anteil von 25% geförderter Wohnungsbau, beim Udldinger Hang 100%
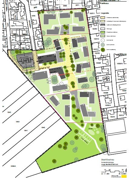
Die Dichte und Geschossigkeit (überwiegend 3 Geschosse, zwei Bauten mit 3 -4, die KiTA mit 2 Geschossen) wurde intensiv kritisiert. Entlang der westlichen Grenz stehen jedoch 4 geschossige Punkthäuser an der östlichen Grenze 3 geschossige Riegel. Insgesamt sind ca. 7.700m2 Bruttogeschossfläche geplant.
Vergleich TSV: Insgesamt sind 27.500m2 Bruttogeschosfläche geplant. Also ein Vielfaches gegenüber dem Gelände Udldinger Hang-West
Die Befürchtungen, dass zu viel Verkehr durch das Gebiet geleitet würden, konnten völlig entkräftet werden, denn die Erschließung erfolgt über eine Sackstraße. Die Befürchtungen, dass zu viel Verkehr insbesondere durch den Hol-und Bringverkehr in das Gebiet geleitet würden, war bei allen Zuhörern zu verspüren und führte zu zahlreichen Wortbeiträgen. Hier wurden seitens der Anwesenden immer wieder falsche Zahlen in den Raum geworfen, bei einer seschsgruppigen Einrichtung wurden 300 Kinder hineininterpretiert. Tatsächlich sind es bei 2 Krippen- und 4 Kindergartengruppen maximal 126 Kinder. Mehrfach betonte der OB, dass zum Verkehr wenig gesagt werden könne, da die entsprechenden Gutachten in Bearbeitung sind aber noch kein Ergebnis vorliege.
Vergleich TSV: Auch hier wird der Verkehr nicht durchgeleitet sondern über das bestehende Straßennetz (Salzburger und Jahnstraße) erschlossen.
Stadtrat Moll bedankte sich mehrfach beim OB für die Veranstaltung und vorzeitige Information.
Für das Bündnis für Dachau stellt sich nun die Frage ob sich für das Bebaungsplanverfahren TSV Stammgelände nicht auch eine entsprechende Veranstaltung anbietet. Man kann dann zwar noch wenig Substanzielles, aber dennoch sehr viel, eindringlich und ausführlich über ungelegte Eier diskutieren.

